Téléphoner
Contacter
Skip links
Skip to primary navigation
Skip to content
MA MAISON SUR-MESURE
MA VILLA D’EXCEPTION
LE GROUPE PIRAINO
Espace client
Agences
NOS MAISONS
OFFRES TERRAINS + MAISONS
RÉALISATIONS
Découvrir Maison Eureka
Maison Eureka
Nos agences
L’accompagnement
Partenaires
Notre volonté
Les matériaux
Nos garanties
Le financement
Recrutement
CONSEILS
Guide d’achat immobilier
Les types de maisons
Astuces et conseils
Construire dans le Nord
Accueil
Accueil
Nos maisons
Nos maisons
Offres Terrains + Maisons
Offres Terrains + Maisons
Nos réalisations
Nos réalisations
Découvrir Maison Eurêka
Découvrir Maison Eurêka
Maison Eurêka
Nos agences
L’accompagnement
Partenaires
Notre volonté
Les matériaux
Nos garanties
Le financement
Recrutement
Conseils
Conseils
Guide d'achat immobilier
Les types de maisons
Astuces et conseils
Construire dans le Nord
NOUS CONTACTER
NOUS CONTACTER
Published in:
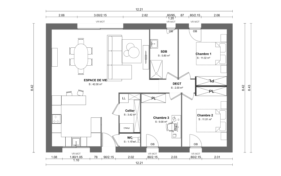
Capture d’écran 2026-01-13 134607.png
Author
Published on:
9 mars 2026
Optimisé par Optimole
Adding {{itemName}} to cart
Added {{itemName}} to cart
Loading...